MEMÓRIA DO PROJETO
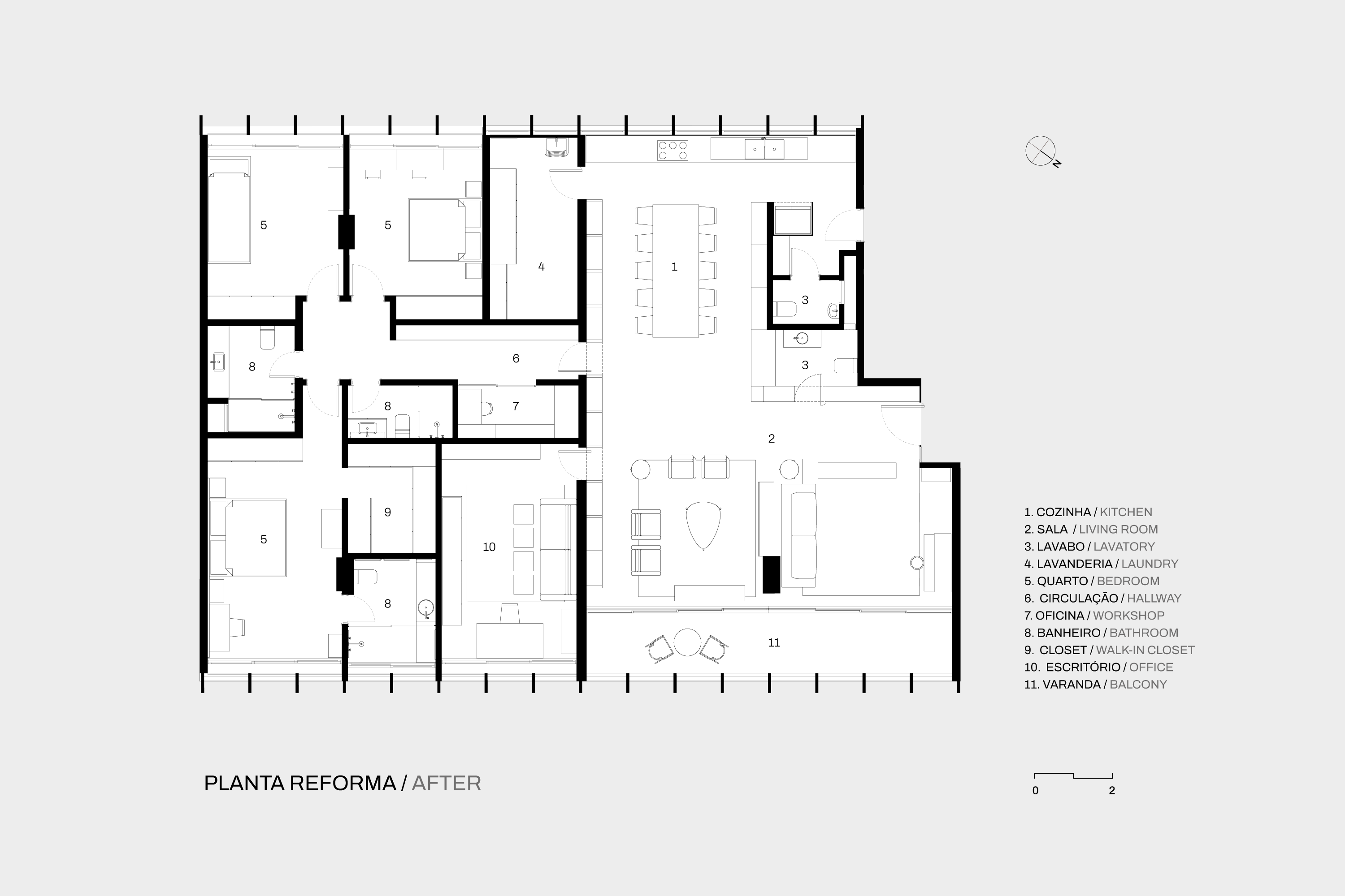
O bloco H da SQN 107 foi concebido em 1965 pelo casal de arquitetos Sérgio e Mayumi Souza Lima, sendo o único edifício "em lâmina" daquele que ficou conhecido como conjunto São Miguel. O edifício encontra-se parcialmente descaracterizado por avanços nas varandas e pela pintura dos seus brises verticais, que eram originalmente em concreto aparente. A unidade reformada não fugia a regra, estando bastante alterada. O objetivo do projeto de reforma de 254m² foi a atualização dessa planta e resgate dos seus elementos originais.
A intervenção teve início com a recuperação da varanda original, voltada para o nascente, transformando-a em uma extensão da área social. No lado poente, a cozinha foi deslocada para o local onde ficavam as dependências e lavanderia e aberta para a sala. O resultado é um ambiente vazado e multifuncional, avarandado em toda sua extensão. O gesto espacial de integração dos espaços também responde ao desejo dos proprietários — um casal paulista com filhos — de habitar um lar amplo, iluminado e ventilado, que favorecesse a convivência diária e o acolhimento de familiares e amigos.
De forma sutil, o projeto busca um diálogo entre o modernismo brasiliense e o paulista, refletido na materialidade e na organização espacial. Assim, a proposta tira partido do concreto aparente, móveis em madeira e piso em pastilhas cerâmicas, elementos presentes em projetos dos clássicos da arquiteta Lina Bo Bardi, como a Casa de Vidro e o MASP.
Na transição entre a parte íntima e social, uma ampla estante foi construída em concreto espelhando o ritmo dos elementos da fachada do edifício. Para reforçar a verticalidade da proposta, as prateleiras foram feitas em vidro temperado, suportadas por cunhas de madeira desenhadas na obra.
Sem necessidade de intervenções estruturais, o projeto transforma uma planta rígida em um espaço coeso, funcional e permeado por referências modernistas reinterpretadas sob uma perspectiva contemporânea e afetiva.
































